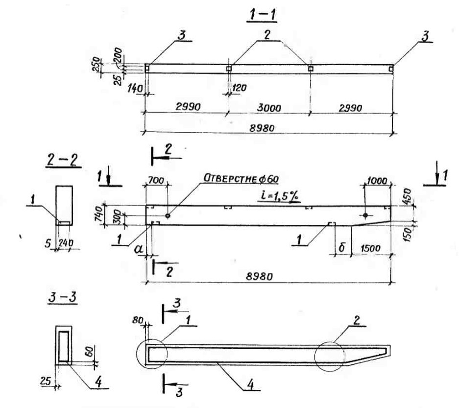
Балка навеса 1БН 4,5-3 представляет собой железобетонную конструкцию, предназначенную для использования в строительстве навесов и небольших навесных конструкций. Имеет прочную железобетонную основу, что обеспечивает надежность и долговечность изделия. Благодаря своей конструкции и размерам, балка навеса 1БН 4,5-3 легко монтируется и обеспечивает необходимую поддержку для кровли или других элементов навеса.
Балка навеса 1БН 4,5-3 идеально подходит для использования в строительстве навесов для автомобилей, террас, беседок и других небольших навесных конструкций. Это надежное и прочное изделие обеспечит необходимую поддержку и защиту от неблагоприятных погодных условий. Благодаря своей прочности и долговечности, балка навеса 1БН 4,5-3 будет служить долгие годы, обеспечивая надежную защиту вашего имущества.









